Borhanci - Cluj-Napoca

Ansamblu modern situat pe strada Borhanciului, imobil cu 13 apartamente și spații comerciale la parter


Un proiect rezidential dezvoltat printr-un parteneriat Ultra Residential & Revolution Residence

Ansamblu modern situat pe strada Borhanciului, imobil cu 13 apartamente și spații comerciale la parter.

 

Plan de situatie

Plan Subsol

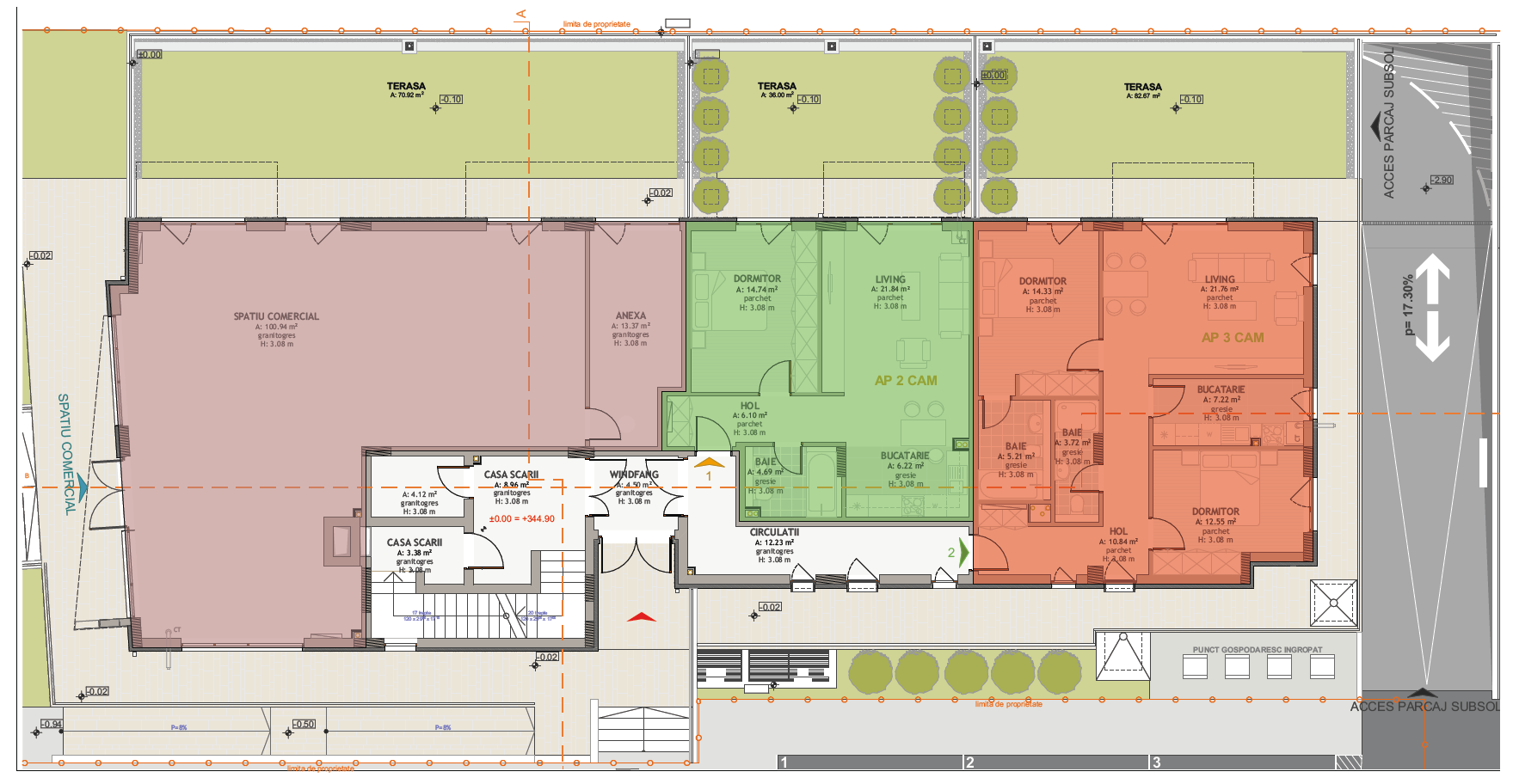
Plan parter

Legenda

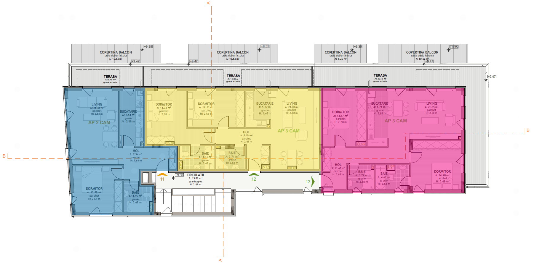
Plan etaj I

Legenda

Plan etaj II

Legenda

Plan etaj III

Legenda

Compare listings

Comparaţie
Ultra Residential
  • Ultra Residential